- Woonoppervlakte
- Circa 123 m²
- Perceeloppervlakte
- Circa 292 m²
- Bouwjaar
- Gebouwd in 1968
- Aantal kamers
- 5 kamers (4 slaapkamers)
MODERNE HOEKWONING MET GARAGE, VERANDA EN TUIN VAN CIRCA 16 METER DIEP
Welkom aan de Pieter de Hooghstraat 71 in Heerhugowaard, waar ruimte, comfort en een verzorgde afwerking samenkomen. Deze strak vormgegeven HOEKWONING (123 m² woonoppervlak) is met zorg en aandacht onderhouden en dat zie je.
Helemaal klaar voor een nieuw gezin dat op zoek is naar een instapklare woning met een royale indeling. Met vier slaapkamers, een luxe badkamer, een diepe tuin met veranda, een eigen kantoorruimte én een GARAGE met ruime oprit voor maar liefst twee auto’s, biedt deze woning alles wat je zoekt.
LOCATIE:
De woning ligt in de ruim opgezette en kindvriendelijke Schilderswijk, met alle voorzieningen dichtbij. Op loopafstand vind je winkelcentrum Berckheideplein, het Fabritiuspark en recreatiegebied Waarderhout. Scholen, sportvoorzieningen en het zwembad zijn eveneens vlakbij. Voor uitgebreid winkelen fiets je in enkele minuten naar Centrumwaard of Middenwaard, en dankzij de goede verbindingen via de randweg ben je snel in Alkmaar, Hoorn of Amsterdam.
Nieuwsgierig? Check de EXCLUSIEVE EIGEN SITE VAN DE WONING voor meer informatie over de woning en de omgeving via de site van EV Wonen Makelaardij.
BEZICHTIGING: plan eenvoudig een afspraak via Funda of de website van EV Wonen Makelaardij. We laten deze bijzondere woning graag aan je zien!
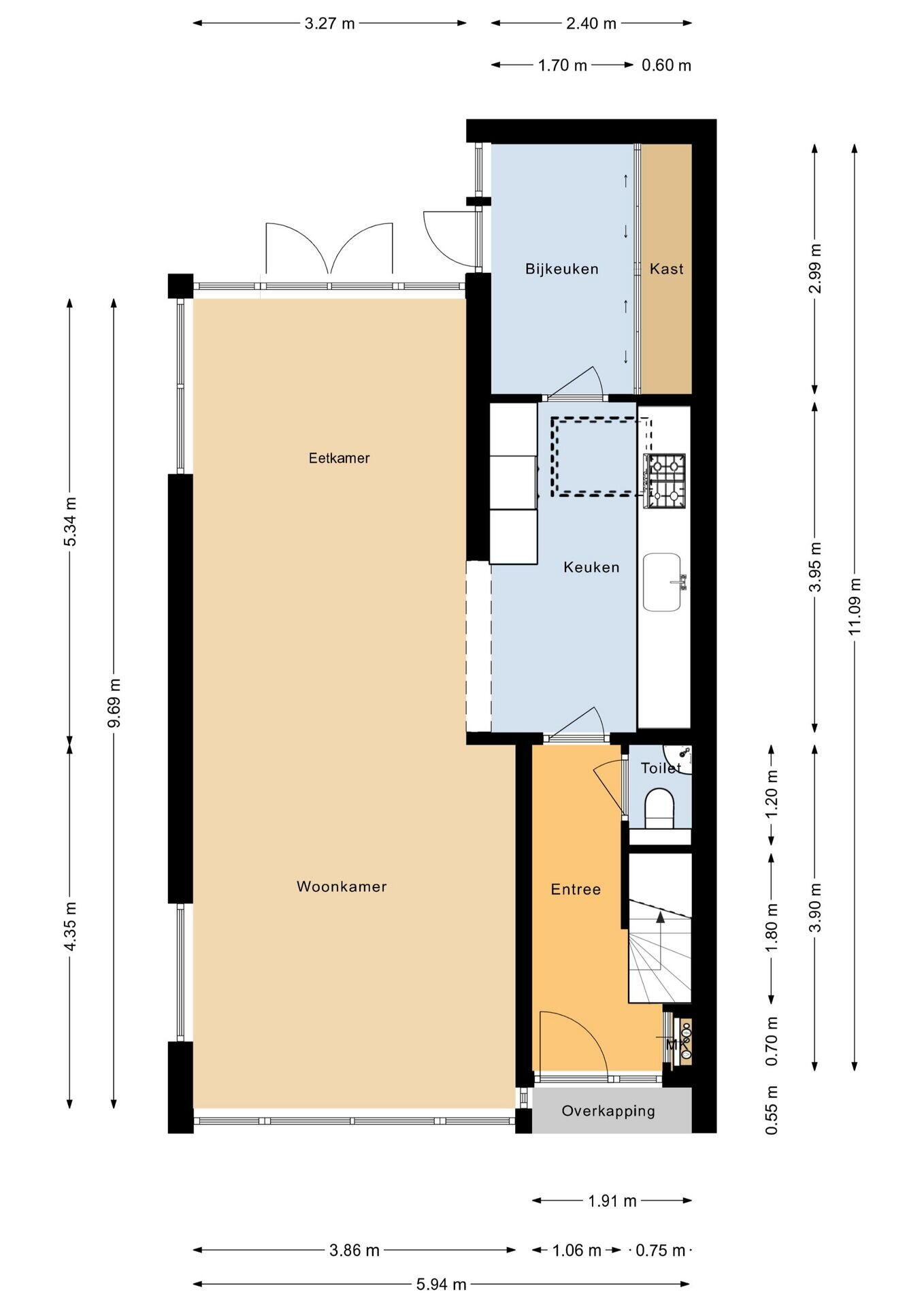
BEGANE GROND:
Bij binnenkomst valt de lichte en ruime woonkamer direct op. Dankzij de uitbouw (2011) geniet je hier van extra leefruimte, een hoog plafond en openslaande deuren naar de tuin. De vloer is afgewerkt met een prachtige massief essenhouten vloer (2 cm dik), inclusief strakke plinten van hetzelfde materiaal, wat zorgt voor een luxe en samenhangende uitstraling. De radiatoren zijn netjes weggewerkt en de wanden zijn voorzien van luxe wandbekleding en stucwerk, wat bijdraagt aan de eigentijdse vormgeving.
De stijlvolle keuken sluit hier mooi op aan en is van alle gemakken voorzien: een 5-pits gaskookplaat, combimagnetron (2025), koelkast, 4-laden vriezer, vaatwasser (2024), afzuigkap, dubbele RVS-wasbak en brede laden voor extra opbergruimte. Daarnaast zorgt de decoratieve betonlook voor een stoere en eigentijdse sfeer die mooi contrasteert met de strakke lijnen van het interieur. Een grote lichtkoepel zorgt bovendien voor extra daglicht en een ruimtelijk gevoel.
Aangrenzend bevindt zich de praktische bijkeuken met tegelvloer, wastafel, aansluitingen voor wasmachine en droger, en een vaste schuifkast met inbouwschuifdeuren, wat zorgt voor een nette en efficiënte indeling.
1e VERDIEPING:
Op de eerste verdieping bevinden zich drie slaapkamers, afgewerkt met laminaat en een combinatie van behang en stucwerk. De kamer aan de voorzijde beschikt over een rolluik voor de avondzon. Op de overloop is een vaste kast aanwezig. De badkamer is vergroot en luxe uitgevoerd met vloerverwarming, ligbad, ruime inloopdouche, tweede toilet, wastafelmeubel en designradiator.
2e VERDIEPING:
De tweede verdieping biedt verrassend veel ruimte dankzij de kunststof dakkapel. De vierde slaapkamer is voorzien van een laminaatvloer en airconditioning, die ’s zomers voor verkoeling zorgt en in de winter als bijverwarming kan dienen. Zowel in de slaapkamer als op de overloop zijn handige opbergluiken aanwezig wat perfect is voor het opbergen van extra spullen. In de vaste kast op de overloop is de omvormer van de zonnepanelen geplaatst.
BUITEN:
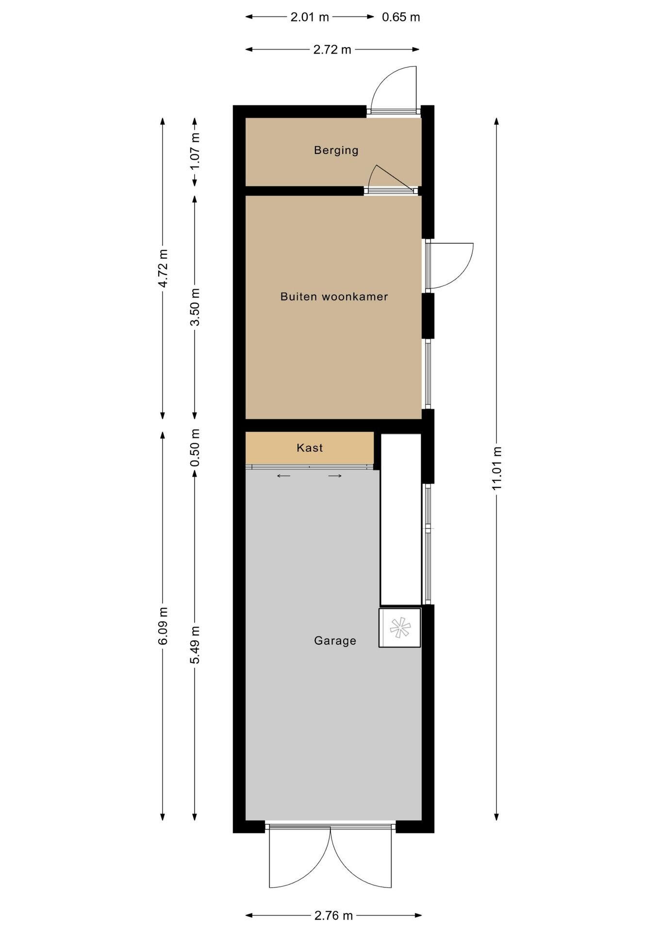
De achtertuin is met zijn diepte van ca. 16 meter een waar buitenparadijs. Met zorg ingericht, volop privacy en voorzien van een veranda waar je het hele jaar door kunt genieten. In de tuin bevinden zich ook een berging en een volledig geïsoleerde kantoorruimte met vloerverwarming, een fijne plek die zeer geschikt is als werkplek of chillruimte.
Aan de zijkant van de woning staat de garage met openslaande deuren, kunststof ramen en voldoende ruimte voor een auto en extra opslag. Voor de garage is er plek om nog twee auto’s op eigen terrein te parkeren. Dankzij de eigen parkeerplaats is er bovendien ruimte om een elektrisch oplaadpunt te realiseren.
DUURZAAMHEID & ONDERHOUD:
De woning is degelijk geïsoleerd en voorzien van kunststof kozijnen in 2022. Alleen de kozijnen aan de voorzijde op de eerste verdieping zijn in 2009 geplaatst. De uitbouw en voordeur zijn van hardhout, waarbij de voordeur in 2024 volledig vernieuwd is. Daarnaast zijn er 13 zonnepanelen (2022) aanwezig. De woning heeft met energielabel C wellicht niet de hoogste klasse, maar dankzij de gebruikte materialen (kunststof), isolatie en slimme voorzieningen zoals maatwerk plissé gordijnen in de gehele woning, is het hier aangenaam en onderhoudsvriendelijk wonen.
BIJZONDERHEDEN:
- Perceel: 292 m²
- 4 slaapkamers
- Luxe badkamer met vloerverwarming, ligbad en inloopdouche
- Kunststof dakkapel en kozijnen
- 13 zonnepanelen (2022)
- Uitbouw woonkamer (2011)
- Garage met oprit voor 2 auto’s
- Tuin van ca. 16 meter diep met veranda, berging en geïsoleerde kantoorruimte
- Airconditioning op zolder
Aanvaarding: in overleg
Een instapklare hoekwoning met veel ruimte, comfort en een fantastisch buitenleven. Plan snel een bezichtiging en laat je verrassen! Lees de volledige omschrijving
Overdracht
- Vraagprijs
- € 465.000 k.k.
- Status
- Verkocht
Bouw
- Object type
- Eengezinswoning, hoekwoning
- Soort bouw
- Bestaande bouw
- Bouwjaar
- 1968
- Soort dak
- Zadeldak bedekt met pannen
Oppervlakte en inhoud
- Woonoppervlakte
- 123 m²
- Perceeloppervlakte
- 292 m²
- Inhoud
- 402 m³
- Externe bergruimte
- 30 m²
- Gebouwgeb. buitenruimte
- 1 m²
Indeling
- Aantal kamers
- 5 kamers (4 slaapkamers)
- Aantal badkamers
- 1 badkamer en 1 apart toilet
- Badkamervoorzieningen
- Inloopdouche, ligbad, toilet, en wastafelmeubel
- Aantal woonlagen
- 3 woonlagen
- Voorzieningen
- Airconditioning, buitenzonwering, dakraam, glasvezelkabel, rolluiken, TV kabel, en zonnepanelen
Energie
- Energielabel
- C
- Energielabel registratie
- 20-11-2024
- Isolatie
- Dakisolatie, dubbel glas en muurisolatie
- Verwarming
- Cv-ketel en gedeeltelijke vloerverwarming
- Warm water
- Cv-ketel
- Cv ketel
- Atag ( combiketel uit 2016, eigendom)
Buitenruimte
- Ligging
- Aan rustige weg en in woonwijk
- Tuin
- Achtertuin en voortuin
- Afmetingen achtertuin
- 98 m² (16,00 meter diep en 6,10 meter breed)
- ligging tuin
- Gelegen op het oosten en bereikbaar via achterom
Bergruimte
- Schuur / berging
- Aangebouwde houten berging
- Voorzieningen
- Elektra en verwarming
Garage
- Soort garage
- Vrijstaande stenen garage
- Capaciteit
- 1 auto
- Voorzieningen
- Elektra en verwarming
- Isolatie
- Dakisolatie, dubbel glas en muurisolatie
Parkeergelegenheid
- Soort parkeergelegenheid
- Op eigen terrein en openbaar parkeren
Actueel energieverbruik
Energielabel deze woning
Energielabel C
Publicatie energielabel: 20-11-2024
Stroomverbruik per jaar
Pieter de Hooghstraat 71, Heerhugowaard
Gasverbruik per jaar
Pieter de Hooghstraat 71, Heerhugowaard
Indicatie hypotheeklasten
Eigen inleg:
Spaargeld / overwaarde
Rente:
Laagste 10-jaars rente
Laagste 10-jaars rente
2,73% - Centraal Beheer Groen... - NHG
3% - Centraal Beheer Groen Lee... - 80%
Laagste 20-jaars rente
3,18% - Argenta Groen Hypothee... - NHG
3,39% - Argenta Groen Hypothee... - 80%
Laagste 30-jaars rente
3,35% - Argenta Groen Hypothee... - NHG
3,56% - Argenta Groen Hypothee... - 80%
Hypotheek:
Bruto maandlasten: € 0 p/m
Netto maandlasten: € 0 p/m
Hoe berekenen we dit?
Het rentepercentage is gebaseerd op de laagste 10 jaars vaste rente voor één hypotheekdeel. De vermelde rente (3% zonder NHG) is gecontroleerd op 18-11-2025. Deze berekening is gebaseerd op een annuïteitenhypotheek die volledig wordt afgelost, waarbij de maandlasten gedurende de gehele looptijd gelijk blijven. De werkelijke rente en netto maandlasten kunnen variëren, afhankelijk van uw persoonlijke situatie en de hypotheekverstrekker. Raadpleeg een financieel adviseur voor een nauwkeurige berekening en advies. Aan deze berekening kunnen geen rechten worden ontleend; het dient enkel als indicatie.
Documentatie
Kadastrale kaart
Leefomgeving
Brochure woning
Kadastrale tekening
BAG uittreksel
Lijst van zaken
Vragenlijst
Meetrapport
Bezoek onze website
Bezichtiging
Bod uitbrengen
Waardebepaling
Zoekopdracht
Alles downloaden
Zonnegrenzen bekijken
Op de kaart
Inwoners in Heerhugowaard
Cijfers voor postcodegebied 1701
- Totaal aantal inwoners
- 59045 inwoners
- Mannen
- 51%
- Vrouwen
- 49%
Inwoners in Heerhugowaard
Cijfers voor postcodegebied 1701
- tot 15 jaar
- 17%
- 15 tot 25 jaar
- 13%
- 25 tot 35 jaar
- 25%
- 45 tot 65 jaar
- 27%
- 65 en ouder
- 18%
Huishoudens in Heerhugowaard
Cijfers voor postcodegebied 1701
- Eenpersoons zonder kinderen
- 31%
- Meerpersoons zonder kinderen
- 34%
- Huishoudens zonder kinderen
- 65%
Huishoudens in Heerhugowaard
Cijfers voor postcodegebied 1701
- Huishoudens met één kind
- 7%
- Huishoudens met meerdere kinderen
- 27%
- Huishoudens met kinderen
- 34%
Woningen in Heerhugowaard
Cijfers voor postcodegebied 1701
- Woningen voor 1945
- 3%
- Woningen tussen 1945 en 1965
- 10%
- Woningen tussen 1965 en 1975
- 60%
- Woningen tussen 1975 en 1985
- 8%
- Woningen tussen 1985 en 1995
- 5%
Woningen in Heerhugowaard
Cijfers voor postcodegebied 1701
- Woningen tussen 1995 en 2005
- 4%
- Woningen tussen 2005 en 2015
- 5%
- Woningen na 2015
- 5%
- Huurwoningen
- 20%
- Koopwoningen
- 80%
Overige in Heerhugowaard
Cijfers voor postcodegebied 1701
- Gemiddelde WOZ waarde
- € 245.000,-
- Personen onder de 65 met uitkering
- 8%
Overige in Heerhugowaard
Cijfers voor postcodegebied 1701
- Adressen per km²
- 1459
- Stedelijkheid (schaal 1 op 5)
- 60%
Korte feiten over Heerhugowaard
Heerhugowaard is een plaats in de gemeente Dijk en Waard, in de regio West-Friesland in de Nederlandse provincie Noord-Holland. Heerhugowaard hoort historisch gezien niet bij Kennemerland maar valt wel onder de gemeentelijke samenwerkingsregio Kennemerland via Noord-Kennemerland.
Wie is EV Wonen Makelaardij?
Het verlaten van je oude woning of het ontdekken van je nieuwe droomhuis is een ongelooflijk opwindend proces voor de meeste van onze klanten. Er zijn zoveel besluiten te nemen en talloze factoren die invloed hebben op het behalen van het best mogelijke resultaat voor jou. Bovendien is de vraag naar woningen sterk gestegen en hebben de prijzen recordhoogtes bereikt.
In deze dynamische en vaak onvoorspelbare markt zijn wij de toonaangevende verkoopmakelaar in de regio, goed geïnformeerd over de lokale huizenmarkt en de verkoopmogelijkheden van jouw woning.
We hebben voor veel klanten uitstekende verkoop- of aankoopresultaten behaald. Wij volgen geen vaste methoden, omdat we geloven dat elke woning en verkoper uniek is. Bij ons kun je rekenen op een persoonlijke benadering. Ons succesgeheim is dat we alledaagse dingen buitengewoon goed uitvoeren.
Een huis met succes verkopen is geen eenvoudige taak. EV Wonen Makelaardij biedt:
– een solide verkoopstrategie;
– een eersteklas presentatie met altijd een toppositie op Funda;
– een gedreven en gecertificeerde Register Makelaar/Taxateur;
– proactief gebruik van sociale media;
– en een flinke portie lokale marktkennis.
Onze aanpak heeft de afgelopen jaren geleid tot een zeer hoge Funda klantbeoordeling van 9,5! Dit betekent dat klanten met een goed verkoopproces uitstekende verkoopresultaten hebben behaald.
We besteden veel aandacht aan jouw persoonlijke situatie en de specifieke kenmerken van jouw woning. Dit, in combinatie met een goede communicatie, garandeert een succesvol verkoop- of aankooptraject. Benieuwd wat we voor jou kunnen doen? We komen graag vrijblijvend langs voor advies op maat.
Naast Heerhugowaard zijn we ook actief als makelaar in Alkmaar, Oterleek, Langedijk, Hensbroek, Obdam en omgeving.
Wij kunnen je op een unieke en persoonlijke manier volledig ontzorgen als verkoopmakelaar of aankoopmakelaar bij de verkoop of aankoop van jouw woning.
Nieuwste reviews
-
Ribeslaan 7
Edwin is een fijne en deskundige makelaar met goede kennis van de markt. De communicatie gedurende het verkoopproces verloopt soepel, hij re...
-
Paradijsvogel 48
Edwin is een no nonses makelaar, weet goed hoe de markt is.Heeft ons huis snel en vakkundig verkocht voor een goede prijs.Het contact met Ed...
-
Jacob Marisstraat 8
Echt een hele fijne makelaar, verdiept zich kundig in de geschiedenis van de woning en omgeving. Snelle en duidelijke klappen en Goede afspr...